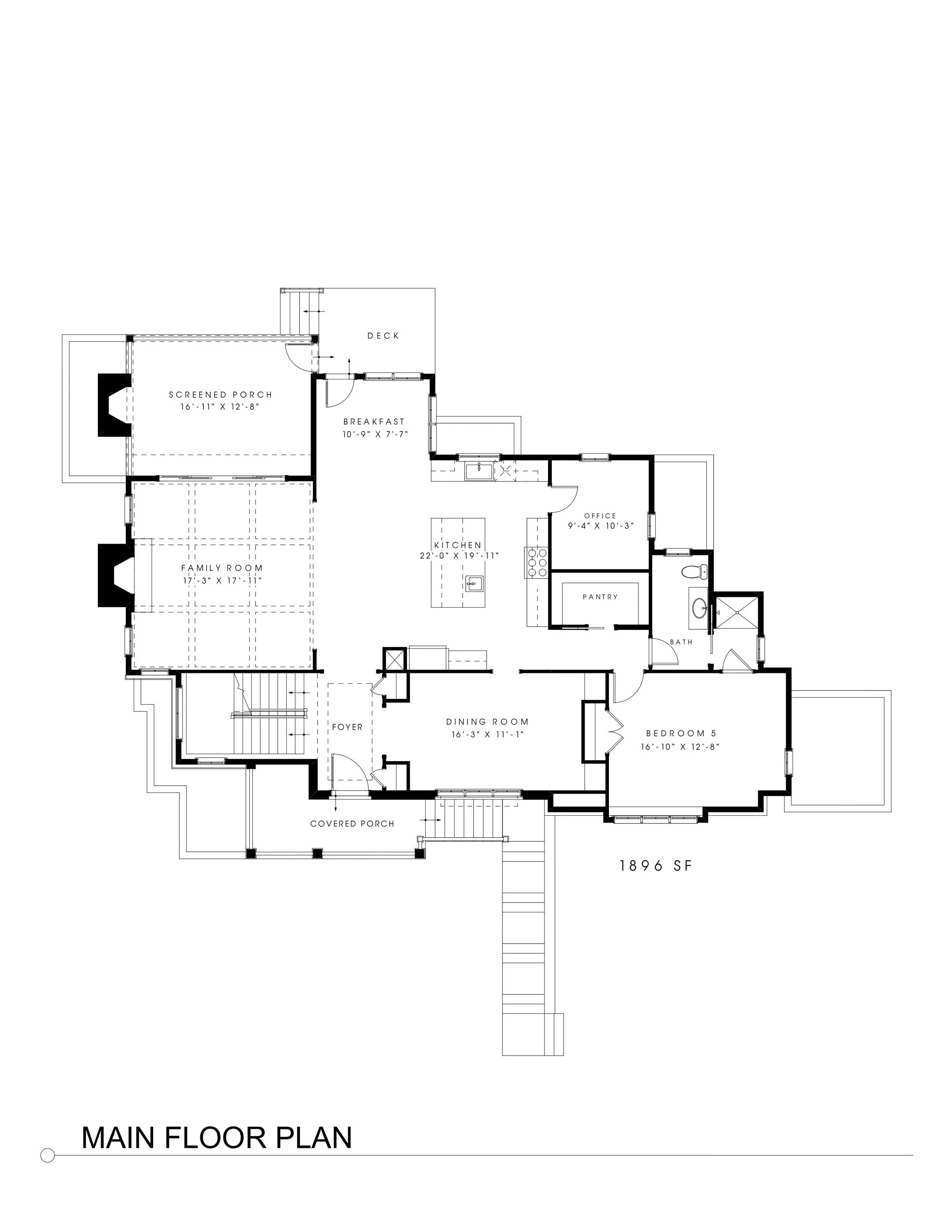
Aurora Highlands - 6BR/6BA/5,000SF - (2026) - Army Navy Dr Arlington VA 22202 View fullsize View fullsize View fullsize View fullsize View fullsize